
제도 3개월차 수업을 듣고 있는
인테리어 취업 준비생입니다.
저는 인테리어디자인 쪽으로
어릴 적부터 생각만 하다가
쉽사리 하지 못할 것 같아서
사무직 쪽으로 취업을 하게 되었습니다.
더 늦으면 정말 인테리 공부를 하지 못하게 될까봐
일과 같이 병행하여 제도 3개월차 공부를 하고 있습니다.
인테리어 취업에 필요한 과정위주로
스케치 , 제도 , cad 을 등록하였고
스케치 공부를 하면서 정말 기초적인 것 부터해서
미술의 기초적인걸 배우는 것 같았어요!

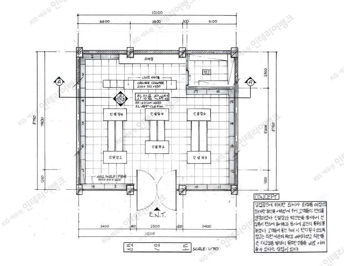
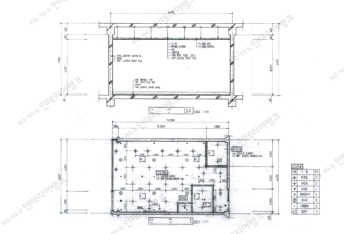
현재 수업듣고 있는 제도 공부 같은 경우에는
총 3개월을 수업을 들었지만 인테리어에 있어서
실내건축 자격증을 취득해야 하는 저에게는
제도 공부가 제일 중요하지 않을꺼란 생각이 듭니다.




'자격증' 카테고리의 다른 글
| 네트워크 관리사 2급 자격증 필기, 실기 공부 방법과 취업방향! (0) | 2021.02.22 |
|---|---|
| 리눅스 마스터 2급 자격증 2021년 시험 일정 및 소개! (0) | 2021.02.22 |
| 정보보안기사자격증 취득하기위한 공부 (0) | 2019.10.28 |
| 중,고등학생이 취득할 수 있는 IT자격증 (0) | 2019.10.21 |
| 네트워크자격증 CCNA자격증 준비 (0) | 2019.10.17 |